Дякую що відгукнулися і бажаєте мені допомогти.
Що до пожежного обладнання розташованого на зовні на авто АХП-1,6(ЗІС-151), то в мене інформації майже нуль. Тільки припущення.
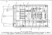
В наборі ще присутні два піногенератора. І два змішувача. А на надстройці для них є місця.

Прискіпливо роздивляючись фото прототипу, прийшов висновку що пінопідьомників встановлено два. Тому зробив відповідні стойки для них.також і раструби для піни буде два.(В наборі їх відповідно по три штуки). Один пінопідьомник зайвий, а от раструб може і ні. Може присутній третій-запасний, і він може бути коротшим. Ці припущення у мене з'явилися після розгляду іншої,але існуючею в один час машини АХПТ (ЗІС-150).



Також важливе питання це ящик для ацетилєнового різака. Чи правильно пропонується у вигляді рамки люка для нього, чи має бути як на АХПТ ЗІС-150?
Як бачите, питань чимало.
